Grundrisse - Büro- und Gewerbeflächen in Berlin-Buch mieten | Kunsthaus Alt-Buch
×
Start
Ausstattung
Sparsam
Grundrisse
Lage
Geschichte
Impressum
Datenschutz
Direkt zum Seiteninhalt
Das Dachgeschoss ist vermietet.
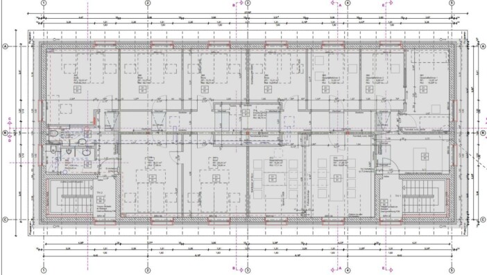
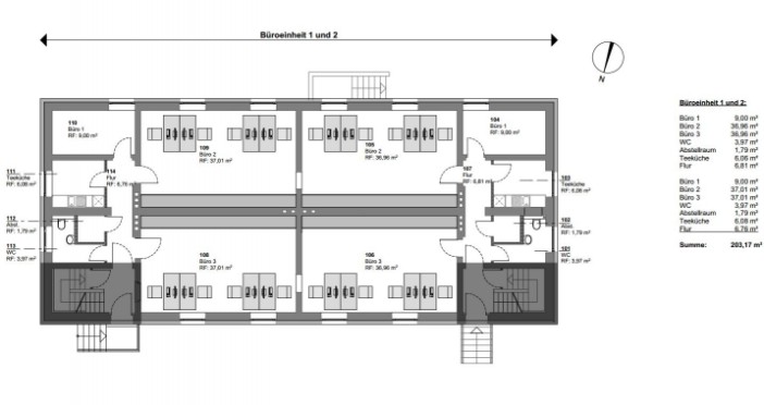
Das Obergeschoss ist derzeit vermietet.
Die halbe Etage hat ca. 101 m² inklusive Küche, WC und Nebenraum.
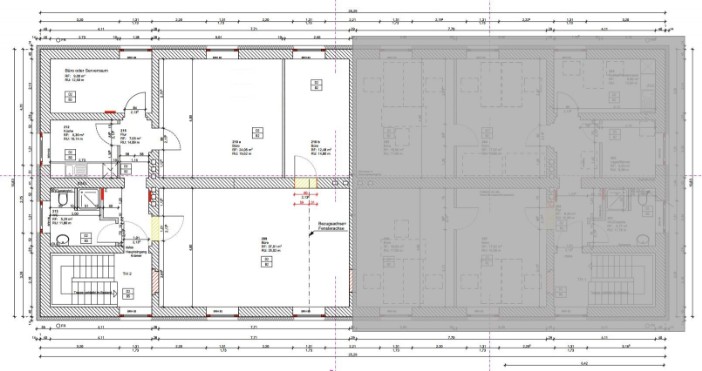
Das Erdgeschoss ist als gesamte Einheit vermietet.
Für alle Mieter stehen Parkplätze auf dem Grundstück zur Verfügung.
Zurück zum Seiteninhalt
Um diese Website nutzen zu können, aktivieren Sie bitte JavaScript.